
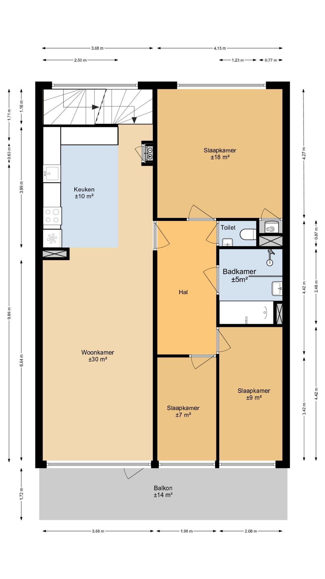
Rotterdam - Ommoord Vraagprijs 325.000,- k.k. Heeft u interesse in deze woning? Laat het ons weten via de knop "Neem contact op". Centraal in Ommoord gelegen op korte afstand van metrostation, winkelcentrum en diverse andere openbaar vervoeringen bevindt zich deze aantrekkelijke maisonnettewoning. Hondje uitlaten? Dat doen we in het recreatiegebied Zevenhuizerplas, lekker dichtbij Begane grond De woning is toegankelijk via de voordeur (je verwacht het niet!) gelegen op straatniveau. Je komt hier in een grote open ruimte welke voorzien is van een nette laminaatvloer en strakke wanden. Wat gaat u met deze ruimte doen? Kantoor aan huis? De fitness apparatuur installeren ? of wellicht bergruimte. Eerste verdieping Een vaste trap brengt je tot de woonverdieping. De ruime woonkamer heeft strakke wanden en geeft toegang tot het balkon. Dit balkon heeft een afmeting van circa 9 bij 2 meter en biedt uitzicht over een park met bomen en diverse planten. Het balkon is voorzien van een tweetal zonneschermen en de ligging is op het zuiden. Lekker veel licht in het huis. De open keuken is voorzien van diverse inbouwapparatuur: een koelkast, oven, magnetron,5 pits gasfornuis met afzuigkap en een vaatwasser. De keuken is afgewerkt met een net aanrechtblad en staat in een hoeksopstelling. Een tussenhal brengt u tot de volgende ruimte: Allereerst een separate ruimte met toilet en fonteintje en verder aanwezig een drietal slaapkamers. Veruit de grootste slaapkamer bevindt zich aan de voorzijde van de woning en is voorzien van een inbouwkast met cv-ketel. De overige twee andere slaapkamers liggen aan de achterzijde. De ruime badkamer is voorzien van een ligbad, wastafel en een douche gelegenheid. Kenmerken: -Dubbele beglazing aanwezig. -Royaal balkon aan achterzijde. -In de directe nabijheid. -Alle denkbare voorzieningen aanwezig. -Nette keuken. Afmetingen: - Woonkamer totaal ca. 30 m2 - Keuken totaal ca. 10 m2 - Badkamer totaal ca. 5 m2 - Slaapkamer 1 totaal ca. 18 m2 - Slaapkamer 2 totaal ca. 9 m2 - Slaapkamer 3 totaal ca. 7 m2 - Balkon totaal ca. 18 m2 Bijzonderheden kenmerken: - Maandelijkse VvE-bijdrage (exclusief stookkosten) ca. 120,- (bij appartement) - Volle eigendom - Voor een veilig en goed onderhouden complex kan de VvE of het bevoegd gezag in de toekomst besluiten tot aanvullende brandveiligheidsmaatregelen. Dit kan mogelijk een eenmalige bijdrage van de eigenaar vragen. Bij aankoop van deze woning zal de oplevering binnen 6 weken plaatsvinden. Indien u over wilt gaan tot een optie of aankoop van de woning dient u aan te tonen dat de koopsom van de woning voor u financieel haalbaar is. Dit kan aangetoond worden door bijvoorbeeld afgifte van een uitgebracht advies door een daartoe deskundige en erkende financile instelling of adviseur. Plattegronden en afmetingen zijn indicatief. Dit is een woning die u koopt op de vrije markt. Verbouwen of tussentijds een extra financiering voor een verbouwing afsluiten, dat regelt u zelf zonder aanvullende voorwaarden. Wanneer u weer wilt verhuizen en de woning verkoopt, kunt u zelf een verkoopmakelaar uitzoeken die de woning voor u verkoopt op de vrije markt waarbij u zelf de verkoopprijs bepaalt. U mag de woning niet verhuren of op andere wijze in gebruik geven aan anderen, dit geldt ook voor opvolgende eigenaren als u de woning weer gaat verkopen! Bewoning of huur door een eerstegraads bloed- of aanverwant wordt als eigen bewoning beschouwd. Het is niet toegestaan om de woning binnen twee jaar na het tekenen van de akte van levering te verkopen. Dit wordt opgenomen in de koopovereenkomst en akte van levering.
| Informații generale | |
| Preț | 325.000 € |
| Stare | vândut |
| acceptare | Per direct beschikbaar |
| Proprietate | |
| Construcție | Bestaande bouw |
| Tipul de apartament | Benedenwoning (appartement) |
| Anul construcției | 1969 |
| Suprafețe și conținutul | |
| Suprafață | 108 m2 |
| suprafaţa exterioară a clădirii | 18 m2 |
| în afara camerei | 6 m2 |
| întreaga suprafață | 302 m2 |
| Diviziune | |
| Numărul de camere | 4 kamers (3 slaapkamers) |
| Numărul de băi | 1 badkamer en 1 apart toilet |
| Echipament pentru baie | Douche |
| Numărul de etaje | 1 woonlaag |
| Situat | Begane grond |
| echipament | Lift en mechanische ventilatie |
| Energia | |
| Tipul | B |
| Izolație | Dubbel glas |
| încălzire | Cv-ketel |
| Apă caldă | Cv-ketel |
| cazan | AWB Thermomaster HR (gas gestookt combiketel uit 2012) |
| Date cadastrale | |
| Structura de proprietate | Volle eigendom |
| Spațiu exterior | |
| Balcon / terasă | Balkon aanwezig |
| Plasare suplimentară | |
| Depozitare în aer liber | Box |
| Garaj |
| Lista spółdzielni mieszkaniowej | |
| Înregistrare în KVK | Ja |
| Ședință anuală | Ja |
| Contribuții periodice | Ja ( 210,00 per maand) |
| Fond de rezervă | Ja |
| Plan de întreținere | Ja |
| Asigurare pentru exteriorul casei | Ja |
Vă rugăm să introduceți câteva detalii pentru a verifica gratuit suma maximă de ipotecă pe care o puteți obține.