Încărcarea paginii....
Încărcarea paginii....

Sinonstraat 13 Disponibil

Locație: 1363 VX Almere

Preț: 549.000 €

Descriere

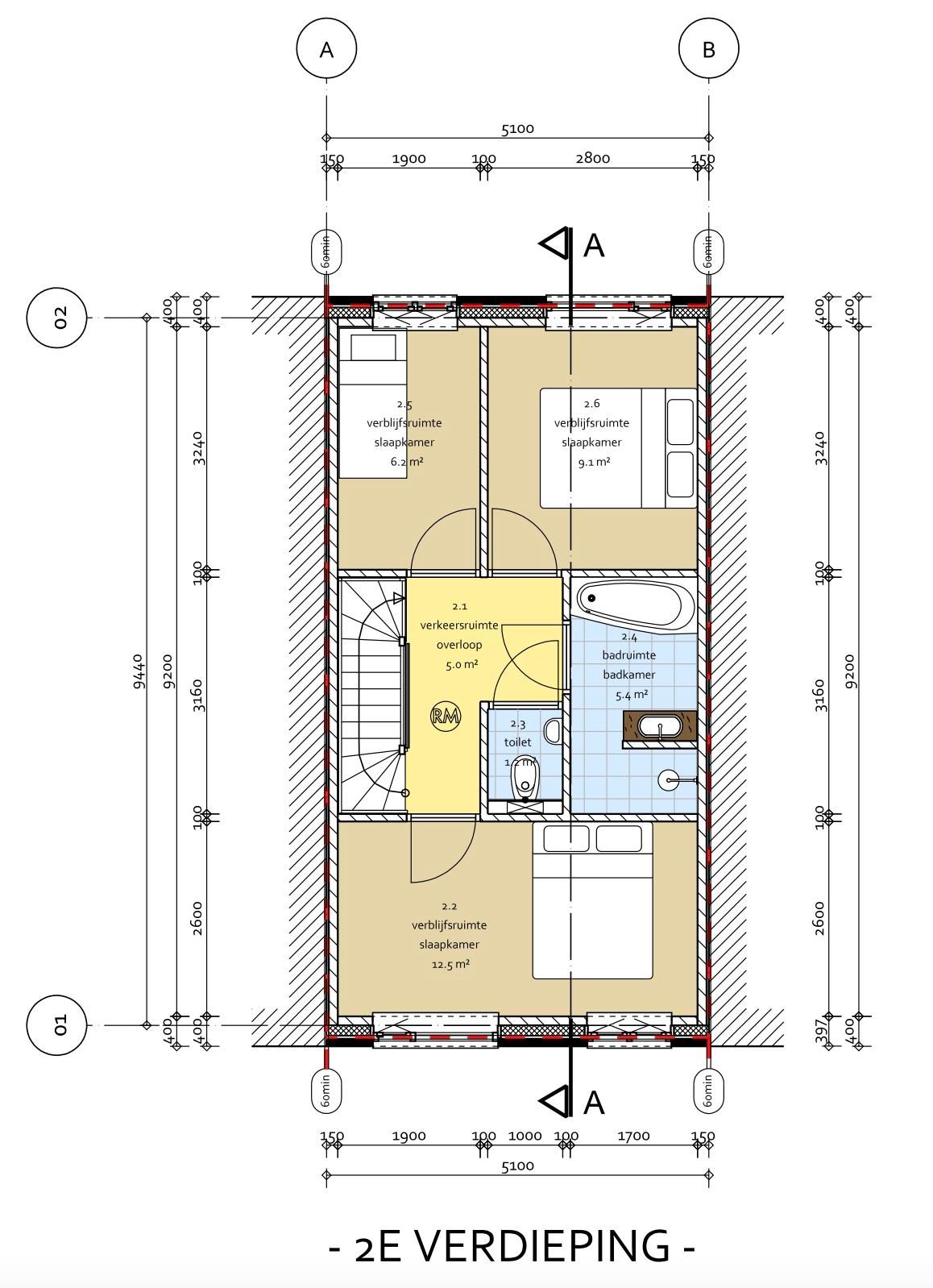
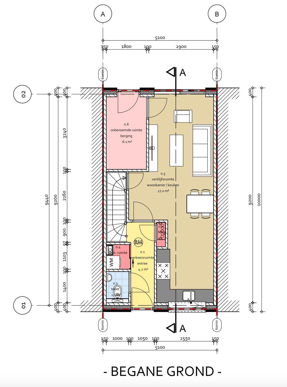
LET OP: prijs is bieden vanaf! ***ENGLISH BELOW Met trots presenteren wij u een INSTAPKLARE unieke parel in de nieuwbouwwijk Homeruskwartier in het hart van Almere Poort. In deze pas opgeleverde nieuwbouw woning, verdeeld over vier woonlagen met een royaal dakterras en maar liefst zeven kamers (uitbreidbaar tot acht), kunt u samen met uw gezin zorgeloos genieten van optimaal woonplezier. Deze woning is om diverse redenen in n woord te bestempelen als UNIEK! De voordelen alvast voor u op een rij: - Instapklare nieuwbouwwoning met zeven kamers (uitbreidbaar tot acht) met royaal dakterras met prachtig uitzicht - Gehele woning afgewerkt met stucwerk en schilderwerk - Voorzien van comfortabele vloerverwarming - Energielabel A+++ inclusief zonnepanelen - Twee schitterende, complete en gloednieuwe keukens - Inpandige berging - Inclusief nieuwe Hongaarse punt laminaatvloer (meegeleverd vanuit verkoper) - Voorzien van een genstalleerde laadpaal, parkeren voor de deur mogelijk - Veiligheid gegarandeerd: automatische roldeuren aan de achtergevel op de begane grond U kunt op het dakterras BBQen zonder gedoe met tuinonderhoud! Lees verder en ontdek alle details van wat misschien wel uw nieuwe thuis wordt! INDELING VAN DE WONING Begane grond: Via de voordeur komt u binnen in de hal. Aan de linkerzijde vindt u een gloednieuwe, volledig betegelde wc en een technische ruimte voor de wasmachine. Aan de rechterkant bevindt zich de meterkast. De hal leidt u naar de brede woonkamer. Ook is er een handige inpandige bergruimte beschikbaar. De moderne keuken is voorzien van een inductiekookplaat, vaatwasser, koelkast, vriezer, afzuigkap, en spoelbak. De gehele achtergevel is uitgerust met een automatische roldeur voor extra veiligheid. Eerste en tweede verdieping: De indeling van deze verdiepingen is identiek en zeer praktisch. Aan beide zijden van de overloop bevindt zich een ruime slaapkamer. Daarnaast is er een badkamer met een ligbad, wastafelmeubel, en een aparte regendouche, en een geheel betegeld toilet. De tweede verdieping beschikt tevens over een moderne keuken in dezelfde stijl als op de begane grond. Derde verdieping: Hier bevindt zich het pronkstuk van de woning: een prachtig en ruim dakterras. Daarnaast vindt u een grote kamer van circa 20 m2, die eventueel kan worden opgedeeld in twee slaapkamers. Elke verdieping heeft een indrukwekkende hoogte van 2,6 meter, wat zorgt voor een ruimtelijk gevoel door de hele woning. Bovendien wordt de woning geleverd met een prachtige Hongaarse punt laminaatvloer, en de zorgvuldig gekozen bakstenen en afwerking geven de voor- en achtergevel een stijlvolle, architectonische uitstraling. PARKEREN Parkeren kan direct voor de deur en er zijn voldoende extra parkeerplaatsen in de nabije omgeving voor uw gasten. ALLES OP LOOPAFSTAND De woning ligt in de gewilde wijk Homeruskwartier in Almere Poort, een groene, gloednieuwe wijk met een prettige sfeer. Alle voorzieningen zijn op loopafstand; vanuit uw slaapkamer kijkt u uit op de Kruidvat en een grote supermarkt. Verder vindt u om de hoek een tandartspraktijk, een huisarts, en scholen. Het bos "Pampushout" en het strand van Almere Duin liggen ook op loopafstand. Een ideale nieuwbouwlocatie die alles biedt wat u wenst! Belangstelling voor een bezichtiging? Stuur gauw een bericht of bel ons op en wij plannen met u een afspraak in! --- ENGLISH --- -- This price is an "offers starting from" price -- With great pride, we present to you a unique gem in the new Homeruskwartier residential area in the heart of Almere Poort. In this newly constructed home, spread over four floors with a spacious roof terrace and no fewer than seven rooms (expandable to eight), you and your family can enjoy worry-free living. This house is because of various reasons simply unique! The advantages at a glance: - New-build home with seven rooms (expandable to eight) - Entire house finished with plasterwork and painting - Equipped with comfortable underfloor heating - Energy label A+++ including solar panels - Two beautiful, complete, and brand-new kitchens - Includes a new herringbone laminate floor - Equipped with an installed charging station - Safety guaranteed: automatic roller shutters on the ground floor rear facade Read on and discover all the details of what might just be your new home! LAYOUT OF THE HOUSE Ground floor: Through the front door, you enter the hallway. On the left, there is a brand-new, fully tiled toilet and a technical room for a washing machine. On the right, youll find the meter cupboard. The hallway leads you into the living room, where on the left side, there is a separate space of approximately 6 m2 that can serve as a bedroom, office, or storage room, with its own access door from the rear facade. The modern kitchen is equipped with an induction hob, dishwasher, refrigerator, freezer, extractor hood, and sink. The entire rear facade on the ground floor is fitted with an automatic roller shutter for added security. First and second floors: The layout of these floors is identical and highly practical. On both sides of the landing, there is a large bedroom. Additionally, there is a bathroom with a bathtub, washbasin, and a separate rain shower, along with a fully tiled toilet. The second floor also features a modern kitchen in the same style as the ground floor. Third floor: This floor contains the highlight of the home: a beautiful and spacious roof terrace. There is also a large room of about 20 m2, which can be divided into two bedrooms if desired. Each floor boasts an impressive height of 2.6 meters, creating a spacious feel throughout the house. Furthermore, the home comes with a beautiful herringbone laminate floor, and the carefully chosen brickwork and finishes give the front and rear facades a stylish, architectural appearance. PARKING Parking is easy, right in front of the house, and there are ample additional parking spaces nearby for visitors. EVERYTHING WITHIN WALKING DISTANCE The house is located in the popular "Homeruskwartier" neighborhood in Almere Poort, a brand-new green neighborhood with a pleasant atmosphere. All essential amenities are within walking distance; from your bedroom, you can see the Kruidvat store and a large supermarket. Around the corner, you will find a dental practice, a doctor's office, and schools. The Pampushout forest is also within walking distance, and to make it even better: the Almere Duin beach is also very close! Interested? Send us a message and we will contact you for a viewing!

Vezi descrierea în poloneză

Informații generale
Preț 549.000 €
Stare disponibil
acceptare In overleg
Proprietate
Natură Eengezinswoning, tussenwoning
Construcție Nieuwbouw
Anul construcției 2024
Acoperiș Plat dak
Suprafețe și conținutul
Suprafață 160 m2
suprafaţa exterioară a clădirii 18 m2
Suprafața terenului 51 m2
întreaga suprafață 416 m2
Diviziune
Numărul de camere 7 kamers (5 slaapkamers)
Numărul de etaje 4 woonlagen
Energia
Tipul A+++
încălzire Stadsverwarming
Apă caldă Stadsverwarming
Date cadastrale
Suprafață 51
Structura de proprietate Volle eigendom
Spațiu exterior
Locație In woonwijk
Plasare suplimentară
Garaj
Contactati-ne
Esti interesat de imobiliare?
scrie-ne

Calculatorul bonității

Vă rugăm să introduceți câteva detalii pentru a verifica gratuit suma maximă de ipotecă pe care o puteți obține.

CALCULA CREDIT IPOTECAR