Încărcarea paginii....
Încărcarea paginii....

Ansjovislaan 24 Disponibil

Locație: 4617 AN Bergen op Zoom

Preț: 410.000 €

Descriere

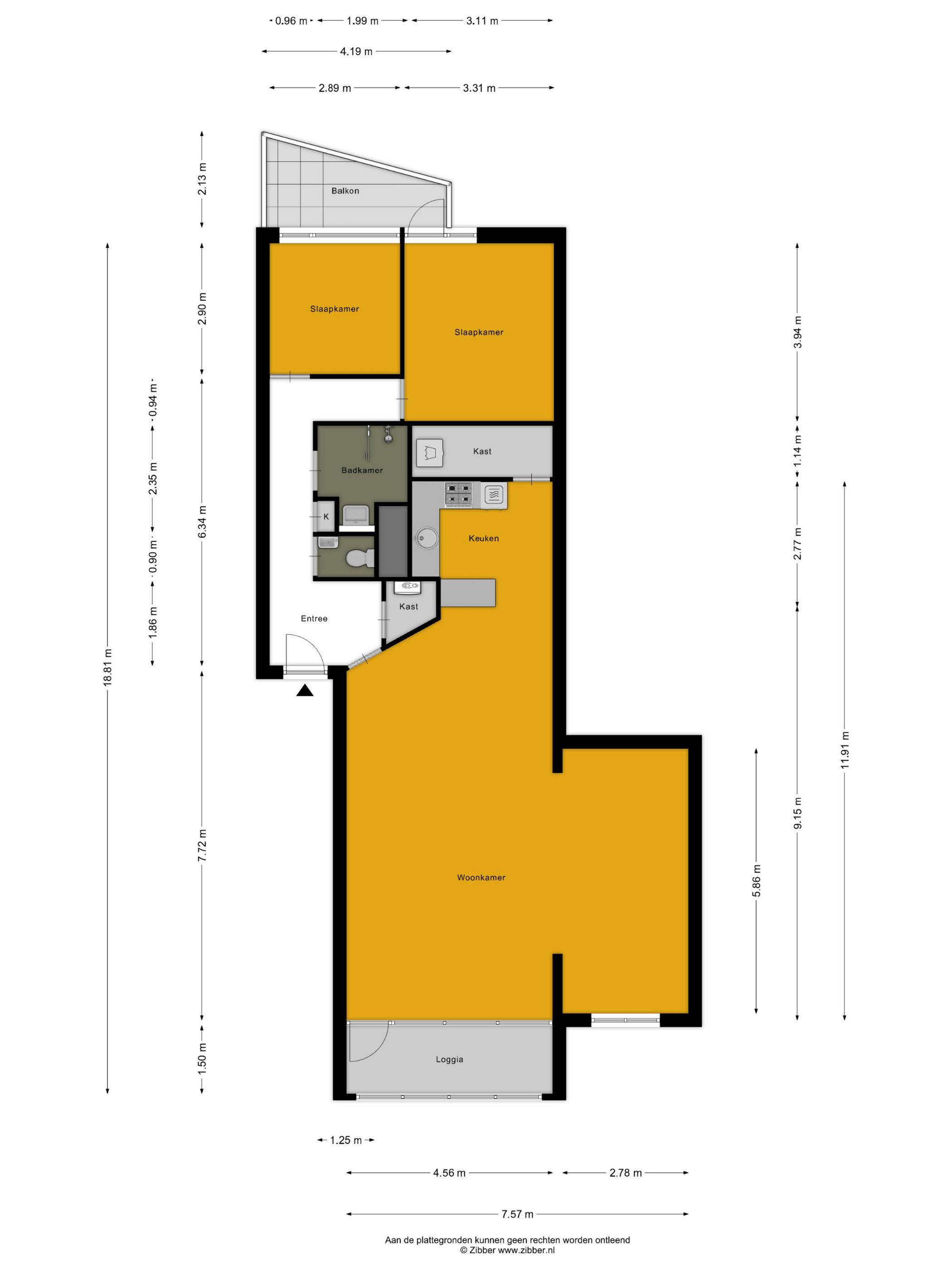
Opvallend ruim 3-kamerappartement met berging n eigen parkeerplaats, gelegen op een fraaie lokatie met vrij uitzicht over de Binnenschelde.  Het balkon aan de achterzijde ligt op het zuiden. Het appartement is gesitueerd op de tweede woonlaag. Winkelcentrum "het Kompas", de bushalte en de gezellige boulevard liggen op wandelafstand van het appartement. De berging en de parkeerplaats liggen in de kelder van het gebouw.  Bouwjaar: 1994. Woonoppervlak: 111 m2  Inhoud: 366 m   De servicekosten bedragen ca. 243,27 per maand voor het appartement, 3,13 voor de berging en 43,69 voor de parkeerplaats.  Indeling: Begane grond (betonvloer): Centrale hal v.v. videofoon, brievenbussen, trappenhuis en lift. Appartement (betonnen vloer): EntreeGang, v.v. laminaatvloer, toilet, technische ruimte v.v. C.V.-ketel  (Intergas, bj: 2020) en MV-unit, meterkast met 8 groepen en 2 aardlekschakelaars. Royale, lichte woonkamer, v.v. laminaatvloer en deur naar serrewinterbalkon. De serre biedt een prachtig uitzicht over de Binnenschelde.  Open keuken, v.v. een hoek opgesteld keukenblok met 4-pits gas kookplaat, afzuigkap, koelkast, combimagnetron en vaatwasser.  BijkeukenBerging, v.v. laminaatvloer en aansluitpunt t.b.v. een wasmachine.  Badkamer, v.v. douche, wastafel en design radiator.  Slaapkamer 1, gelegen aan de achterzijde, v.v.  laminaatvloer. Slaapkamer 2, gelegen aan de achterzijde, v.v. laminaatvloer en deur naar balkon.  Parkeerplaats (nr 24) in de kelder van het gebouw. En aangrenzend bevindt zich de berging (nr 18)  De servicekosten omvatten: - verzekeringen - dagelijks onderhoud - verenigingskosten - reservering groot onderhoud BIJZONDERHEDEN: - De keuze van de notaris is voorbehouden aan de verkoper - verkoopvoorwaarden zijn van toepassing  - Een koopovereenkomst komt pas tot stand na uitdrukkelijke toestemming van de directie van Vesteda Investment Management BV welke blijkt uit het ondertekenen van de koopovereenkomst. Nieuwsgierig geworden naar deze woning? Maak dan een afspraak voor een bezichtiging. Ook wanneer je je eigen huis wilt verkopen, zijn we je graag van dienst. Maak een afspraak voor een orinterend gesprek.

Vezi descrierea în poloneză

Informații generale
Preț 410.000 €
Stare disponibil
acceptare In overleg
Proprietate
Construcție Bestaande bouw
Tipul de apartament Portiekflat (appartement)
Anul construcției 1994
Acoperiș Plat dak bedekt met bitumineuze dakbedekking
Suprafețe și conținutul
Suprafață 111 m2
suprafaţa exterioară a clădirii 13 m2
în afara camerei 11 m2
întreaga suprafață 365 m2
Diviziune
Numărul de camere 3 kamers (2 slaapkamers)
Numărul de băi 1 badkamer en 1 apart toilet
Echipament pentru baie Inloopdouche, toilet, en wastafel
Numărul de etaje 1 woonlaag
Situat 2e woonlaag
echipament Mechanische ventilatie en TV kabel
Energia
Tipul C
Izolație Dakisolatie, dubbel glas en muurisolatie
încălzire Cv-ketel
Apă caldă Cv-ketel
cazan Intergas (gas gestookt combiketel uit 2020, eigendom)
Date cadastrale
Structura de proprietate Volle eigendom
Spațiu exterior
Locație Aan water, in woonwijk en vrij uitzicht
Balcon / terasă Balkon aanwezig
Plasare suplimentară
Depozitare în aer liber Inpandig
Depozitare Geen isolatie
Garaj
Tipul Parkeerkelder en parkeerplaats
Izolație Geen isolatie
Lista spółdzielni mieszkaniowej
Înregistrare în KVK Ja
Ședință anuală Ja
Contribuții periodice Ja ( 290,09 per maand)
Fond de rezervă Ja
Plan de întreținere Ja
Asigurare pentru exteriorul casei Ja
Contactati-ne
Esti interesat de imobiliare?
scrie-ne

Calculatorul bonității

Vă rugăm să introduceți câteva detalii pentru a verifica gratuit suma maximă de ipotecă pe care o puteți obține.

CALCULA CREDIT IPOTECAR