
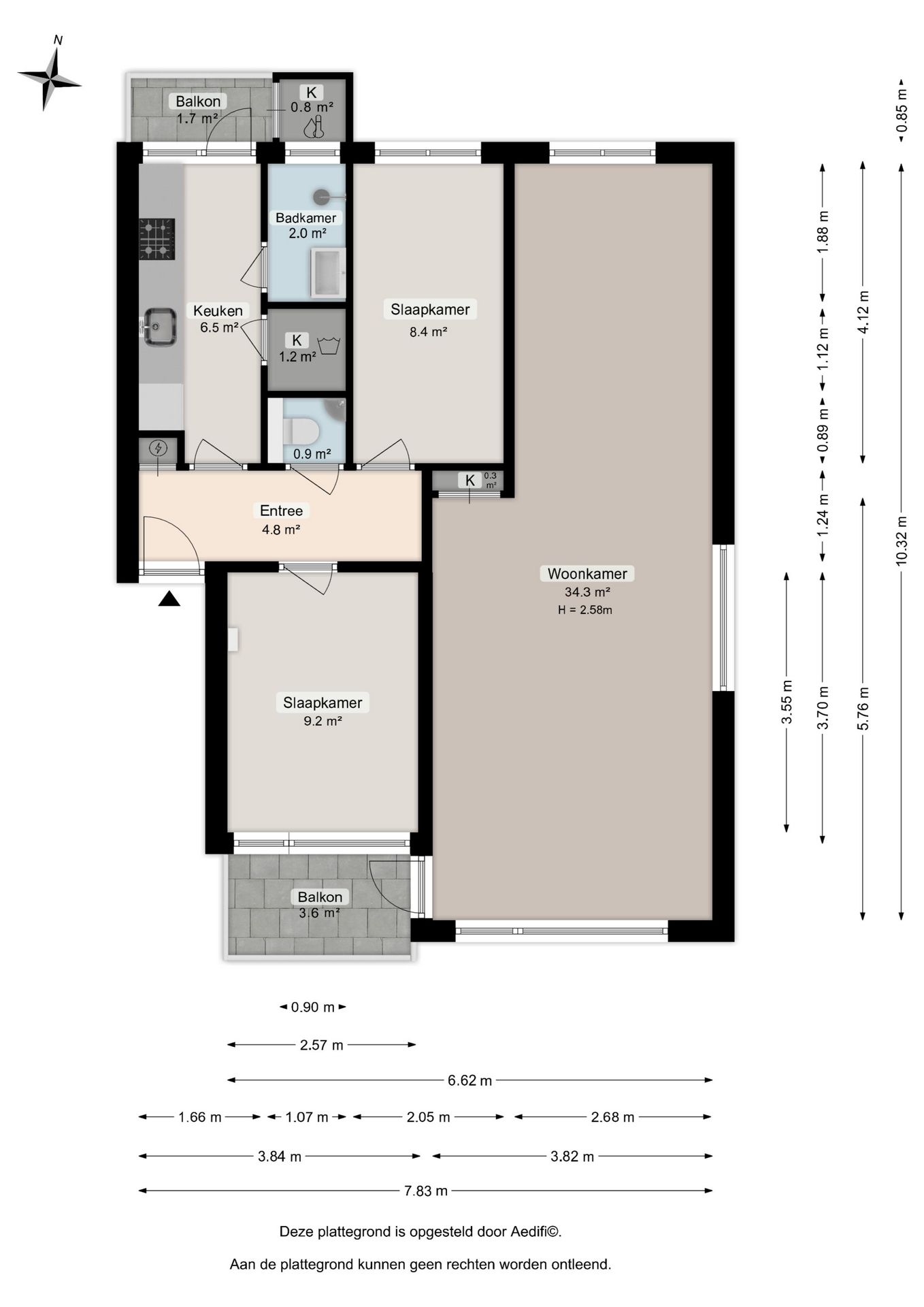
Een fraai, instapklaar en zeer licht hoekappartement op een geliefde locatie in De Wijert. Het voormalig 4-kamer appartement is gelegen op de derde woonlaag en voorzien van zowel een ruim balkon op het zuiden als een klein balkon op het noorden. Rondom voorzien van kunststof kozijnen met HR++ glas. Dit uiterst verzorgde appartement ligt op korte afstand van meerdere winkelcentra (HelpmanVan LenneplaanOverwinningsplein) alsmede nabij de bruisende binnenstad van Groningen. Een opstapplaats voor de bus is direct om de hoek van het appartementencomplex. INDELING Begane grond: Afgesloten portiek met intercom - via trappenhuis naar de derde verdieping. 3e Verdieping Entree - hal met meterkast - toilet met fonteintje - keuken met nette keukeninrichting voorzien van koelkast met vriesvak, 4 pits gaskookplaat en wasmachine aansluiting, ruime voorraadkast en deur naar het balkon op het noorden. Op het balkon staat een kast met de cv-combiketel. De verzorgde badkamer (2018) heeft een inloopdouche, wastafelmeubel en mechanische ventilatie. Twee slaapkamers (10 en 8m2). De doorzonwoonkamer (35m2) met gestuukte wanden heeft een zijraam waardoor er extra veel licht binnenkomt. Het tweede balkon ligt op het zuiden en is vanuit de woonkamer te bereiken; woonkamer is voorzien van een zonnescherm. In de kelder bevindt zich de ruime berging (14m2). Bijzonderheden: - Volledig voorzien van kunststof kozijnen met HR++ glas; - VvE bijdrage 140,- per maand; - Mijnbouwschade dossier (circa 1200,-); - Verwarming d.m.v. cv-combiketel (Intergas, bj. 2008).
| Informații generale | |
| Preț | 275.000 € |
| Stare | vândut |
| acceptare | In overleg |
| Proprietate | |
| Construcție | Bestaande bouw |
| Tipul de apartament | Portiekflat |
| Anul construcției | 1959 |
| Acoperiș | Plat dak |
| Suprafețe și conținutul | |
| Suprafață | 72 m2 |
| Alte locuri din interior | 1 m2 |
| suprafaţa exterioară a clădirii | 5 m2 |
| în afara camerei | 14 m2 |
| întreaga suprafață | 242 m2 |
| Diviziune | |
| Numărul de camere | 3 kamers (2 slaapkamers) |
| Numărul de băi | 1 badkamer en 1 apart toilet |
| Echipament pentru baie | Douche en wastafelmeubel |
| Numărul de etaje | 1 woonlaag |
| Situat | 3e woonlaag |
| echipament | Mechanische ventilatie en TV kabel |
| Energia | |
| Tipul | D |
| Izolație | Dubbel glas |
| încălzire | Cv-ketel |
| Apă caldă | Cv-ketel |
| cazan | Intergas (gas gestookt combiketel uit 2008, eigendom) |
| Date cadastrale | |
| Structura de proprietate | Volle eigendom |
| Spațiu exterior | |
| Balcon / terasă | Balkon aanwezig |
| Plasare suplimentară | |
| Depozitare în aer liber | Inpandig |
| Garaj |
| Lista spółdzielni mieszkaniowej | |
| Înregistrare în KVK | Ja |
| Ședință anuală | Ja |
| Contribuții periodice | Ja ( 140,00 per maand) |
| Fond de rezervă | Ja |
| Plan de întreținere | Ja |
| Asigurare pentru exteriorul casei | Ja |
Vă rugăm să introduceți câteva detalii pentru a verifica gratuit suma maximă de ipotecă pe care o puteți obține.