Încărcarea paginii....
Încărcarea paginii....

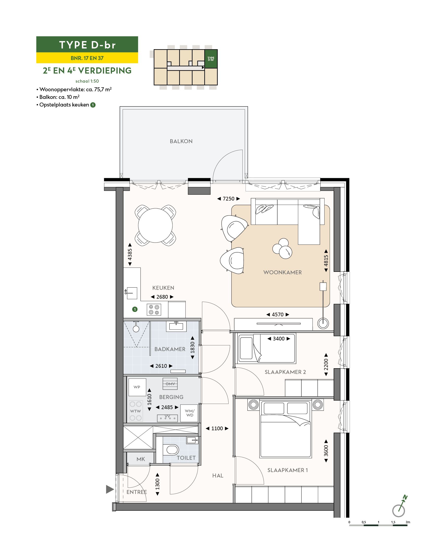
Type E-bl (Bouwnr. Bwnr. B48) Vândut

Locație: 2903 TA Capelle aan den IJssel

Preț: la cerere

Descriere

Ontdek dit prachtige 2-kamer appartement, gelegen in de rustige en groene Vogelbuurt. Deze moderne woonruimte biedt u een nieuw thuis. De royale woonkamer met open keuken, een comfortabele slaapkamer en een complete badkamer zorgen voor optimaal wooncomfort. Dit compacte appartement is ideaal voor een starter die zijn eerste huis koopt. Geniet van de buitenlucht op de gemeenschappelijke daktuin , ideaal voor ontspanning en gezellige momenten. Met winkels, scholen en openbaar vervoer om de hoek, woont u hier in een kindvriendelijke buurt op korte afstand van het bruisende centrum van Capelle aan den IJssel.

Vezi descrierea în poloneză

Informații generale
Stare vândut
Proprietate
Suprafețe și conținutul
Diviziune
Energia
Date cadastrale
Spațiu exterior
Plasare suplimentară
Garaj
Contactati-ne
Esti interesat de imobiliare?
scrie-ne

Calculatorul bonității

Vă rugăm să introduceți câteva detalii pentru a verifica gratuit suma maximă de ipotecă pe care o puteți obține.

CALCULA CREDIT IPOTECAR