
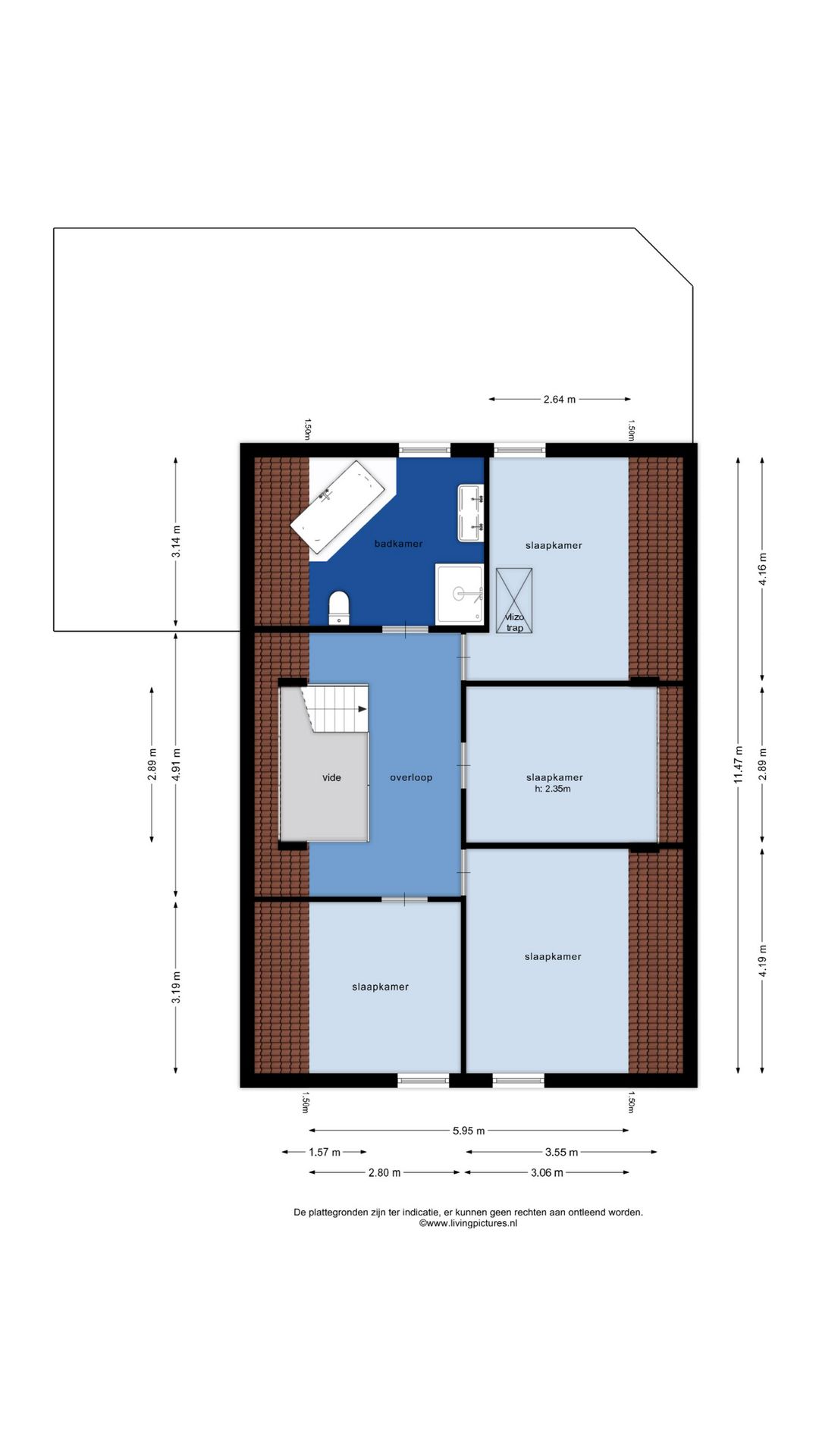
Een 3D beleving van deze woning vindt u onder het kopje 3D tour. Veel kijkplezier gewenst! Ruimtewonder op fantastisch locatie! Dit is de meest beknopte beschrijving voor deze goed onderhouden vrijstaande woning. De woning is zo'n 193 vierkante meter groot en met een perceel eronder van circa 497 vierkante meter kom je zowel binnen als buiten niet snel ruimte tekort. In de voornoemde vierkante meters woonoppervlakte is de garage en de zolder nog niet eens meegenomen, deze zijn samen ook nog eens 45 vierkante meter groot. Je woont aan een rustige straat welke doodloopt. Hierdoor komt er alleen bestemmingsverkeer in de straat. Lekker rustig wonen dus. De woning zelf heeft een royale lichte woonkamer, luxe leefkeuken met alles erop en eraan, praktische bijkeuken, slaap-werkkamer op de begane grond en dan kom je op de verdieping een viertal slaapkamers tegen en een ruime badkamer welke van alle gemakken is voorzien. In de tuin is het ook goed toeven. Vanaf het eerste zonnestraaltje kun je al lekker buiten zitten. Dit kan op het grote terras of met een spatje regen onder de overkapping. Verder is er veel groen en heeft de tuin een aangename sfeer. Kortom, ben je op zoek naar een lekkere ruime woning waar je niet meer aan hoeft te klussen, dan ben je hier aan het juiste adres. Plan een afspraak in en overtuig jezelf! Indeling Begane grond Ruime entree welke gelijk het karakter van deze woning typeert. In de entree is de meterkast (vernieuwd met 8 groepen, groep zonnepanelen, kookgroep, groep tuin en aardlekschakelaars), trap naar de eerste verdieping, toegang tot de toiletruimte en de woonkamer. De toiletruimte is deels betegeld en voorzien van een duoblok en fonteintje. De woonkamer is verrassend ruim! Wat een ruimte heb je hier. De woonkamer is in L-vorm en daardoor heb je verschillende plekken om een zithoek te creren. Je hebt aan drie kanten ramen en dus overal is licht en zicht. Vanuit de woonkamer kun je naar de achterzijde waar je de keuken treft. De woonkamer en de keuken wordt afgescheiden van elkaar middels een mooie stalen taatsdeur. Dan door naar de leefkeuken. Wat een fantastische plek is dit. Door de aangebouwde tuinkamer heb je hier veel ruimte en licht. Er is een eiland met een inductiekookplaat en vaatwasser. Boven het eiland is een verlaagd plafond gemaakt met ingebouwde afzuigkap en spots. Het aanrechtblad is van natuursteen. Aan de andere zijde is een wandopstelling met ingebouwde koelkast, dubbele combi-oven, wijnkoeler en heel veel bergruimte in de kasten met lades. De tuinkamer is een heerlijke plek om aan de grote eettafel aan te schuiven. Door alle grote ramen kijk je over de mooie groene tuin weg. Via een loopdeur is de tuin te bereiken, maar je kunt ook de openslaande deuren lekker open zetten. Vanuit de keuken is de bijkeuken te bereiken en de slaap-werkkamer beneden. Deze kamer is aan de achterzijde gelegen en door het raam kijk je ook weer weg over de tuin. Een fijne plek om in de ochtend te ontwaken of in alle rust te werken. De praktische bijkeuken is voorzien van de opstelplaats voor de cv-ketel (Remeha Calenta HR combi), de aansluitingen voor de wasapparatuur en er is nog een handig keukenblokje aanwezig. Vanuit de bijkeuken is de royale garage te bereiken. De garage is van een goed formaat en keurig afgewerkt. De vloer is gecoat, de wanden zijn strak en er ligt een net plafond in. Verder zijn er dubbele deuren naar de oprit, een wastafel, deur naar de tuin, er is verwarming en elektra en als laatste kom je hier nog de omvormers voor de zonnepanelen tegen. De begane grond is ter plaatse van de plavuizen voorzien van vloerverwarming als bijverwarming. Eerste verdieping: Je komt boven op een grote overloop met een vide en dakkapel. Vanuit hier is er toegang tot de vier slaapkamers en de badkamer. De eerste slaapkamer is aan de achterzijde gelegen en deze is voorzien van een luik naar de bergzolder. De tweede slaapkamer is in het midden gelegen en deze heeft een dakkapel. Dan hebben we nog twee slaapkamers aan de voorzijde en deze zijn beide ook weer van een mooi formaat. De badkamer is ruim opgezet en alles is aanwezig. Er is een dubbele wastafel in meubel, een douche, ligbad en duoblok toilet. Zolder: De zolder is ruim en met een hoogte van 2,6 meter prima te belopen. Alles is bevloerd en je kunt hier dus alle spullen opbergen welke je niet dagelijks nodig hebt. Twee ramen zorgen voor daglicht. De ruimte zou geschikt gemaakt kunnen worden voor extra slaapkamers na het plaatsen van een vaste trap. Tuin: De tuin is uiterst verzorgd in aangelegd met een mooi gazon, groene borders en diverse terrassen. Direct achter de woning is een terras gemaakt van composiet delen welke sfeer geven. Aan de zijkant ligt een bestraat terras met aansluitend een overkapt zitgedeelte. De veranda is voorzien van zeilen rondom zodat hij ook af te sluiten is. Via een poort aan de zijkant kun je de voorzijde bereiken. Ook kun je achterin de tuin via een poort de watergang bereiken welke achter de woning is gelegen. Algemeen: - op het dak van de woning liggen 16 zonnepanelen en op het dak van de overkapping nog eens 4 extra grote zonnepanelen.
| Informații generale | |
| Preț | 700.000 € |
| Stare | disponibil |
| acceptare | In overleg |
| Proprietate | |
| Natură | Eengezinswoning, vrijstaande woning |
| Construcție | Bestaande bouw |
| Anul construcției | 1992 |
| Acoperiș | Zadeldak bedekt met pannen |
| Suprafețe și conținutul | |
| Suprafață | 193 m2 |
| Alte locuri din interior | 45 m2 |
| suprafaţa exterioară a clădirii | 14 m2 |
| Suprafața terenului | 497 m2 |
| întreaga suprafață | 760 m2 |
| Diviziune | |
| Numărul de camere | 6 kamers (5 slaapkamers) |
| Numărul de băi | 1 badkamer en 1 apart toilet |
| Echipament pentru baie | Douche, dubbele wastafel, ligbad, toilet, en wastafelmeubel |
| Numărul de etaje | 2 woonlagen en een zolder |
| echipament | Buitenzonwering, TV kabel, en zonnepanelen |
| Energia | |
| Tipul | A |
| Izolație | Dakisolatie, dubbel glas, muurisolatie en vloerisolatie |
| încălzire | Cv-ketel en gedeeltelijke vloerverwarming |
| Apă caldă | Cv-ketel |
| cazan | Remeha Calenta (gas gestookt combiketel uit 2012, eigendom) |
| Date cadastrale | |
| Suprafață | 497 |
| Structura de proprietate | Volle eigendom |
| Spațiu exterior | |
| Locație | Aan rustige weg en in woonwijk |
| Grădină | Achtertuin, voortuin en zijtuin |
| în afara curții | 176 m2 (11,80 meter diep en 14,90 meter breed) |
| Expozitie de gradina | 176 m2 (11,80 meter diep en 14,90 meter breed) |
| Plasare suplimentară |
| Garaj | |
| echipament | Elektra, verwarming en stromend water |
| Tipul | Aangebouwde stenen garage |
| Capacitatea garajului | 1 auto |
Vă rugăm să introduceți câteva detalii pentru a verifica gratuit suma maximă de ipotecă pe care o puteți obține.