Încărcarea paginii....
Încărcarea paginii....

Ravelijnstraat 36 Vândut

Locație: 4102 AM Culemborg

Preț: 450.000 €

Descriere

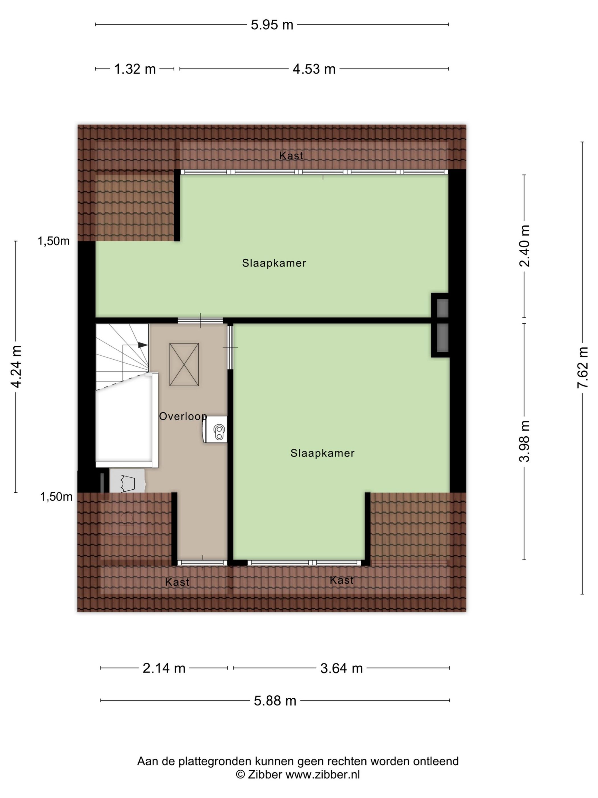
Op zoek naar een woning waar ruimte en comfort samenkomen? Deze royale tussenwoning met een woonoppervlakte van maar liefst 139 m2 ligt in een fijne woonomgeving en is tot in de puntjes verzorgd. Met vier slaapkamers, een moderne keuken en badkamer en duurzame voorzieningen zoals zonnepanelen, is dit een huis dat direct klaar is voor een nieuwe eigenaar. De woning is gelegen op een fijne locatie in een nette woonwijk. In de omgeving is genoeg natuur om lekker te wandelen of te fietsen, maar het centrum van Culemborg is ook dichtbij. Hierdoor zijn alle voorzieningen als winkels, horecagelegenheden, supermarkt, scholen en sportfaciliteiten in de buurt. Ook is er op loopafstand een winkelcentrum aanwezig. Uitvalsweg A2 is binnen 10 minuten te bereiken, waardoor u binnen de kortste tijd in nabij gelegen steden bent. Het NS-station Culemborg is ook in de nabijheid met een frequente verbinding naar NS-stations Utrecht en Den Bosch. Indeling Begane grond Een lichte woonkamer met een prachtige visgraat PVC vloer die meteen sfeer geeft. De woonkamer is verdeeld in een woongedeelte en een eetgedeelte in de serre, welke voor veel extra lichtinval zorgt. In de woonkamer is een airconditioning aanwezig. De ruime, moderne keuken is van alle gemakken voorzien. Je kan hier heerlijk koken en bakken op de Smeg 5-pits gaskookplaat en de heteluchtoven. Verder is er een afzuigkap, vaatwasser, koel-vriescombinatie en een combi-magnetron aanwezig. Ook is de keuken voorzien van voldoende kastruimte, een mooi stenen aanrechtblad en spotjes. Vanuit de keuken heb je toegang tot de tuin. De tuin is ook te bereiken via de schuifpui in de serre. Eerste verdieping Deze bereik je via de met PVC (en verlichting) beklede trap. Hier bevinden zich twee slaapkamers, waaronder een bijzonder ruime master bedroom. Een heerlijk ruime slaapkamer, voorzien van airconditioning. De moderne badkamer is strak afgewerkt en van alle comfort voorzien, zoals een inloopdouche, een wastafelmeubel, een radiator en een toilet. Ook hier zijn sfeervolle spotjes aanwezig. Tweede verdieping Via een vaste, ook met PVC beklede, trap bereik je de tweede verdieping. Een derde en een vierde kamer, ideaal als extra slaapkamer, werk- of hobbyruimte. Op de overloop is de wasmachineaansluiting aanwezig, is de CV-installatie te vinden en is de omvormer van de zonnepanelen genstalleerd. De gehele woning is voorzien van kunststof kozijnen. Buitenruimte De voortuin is netjes aangelegd. De achtertuin ligt op het Noord-Westen, waardoor er vanaf de middag tot in de avond zon aanwezig is. Een mooie plek om na werktijd nog even van de zon te genieten. Er bevindt zich ook een stenen berging en er zijn in totaal 4 zonneschermen aanwezig. Verder liggen er op het dak van de woning maar liefst 9 zonnepanelen. Bijzonderheden - Fijne woning met een ruime woonoppervlakte van 139m2; - Bouwjaar 1975; - 4 slaapkamers; - Moderne keuken en badkamer; - Stijlvolle PVC-vloer op de begane grond; - Keurig onderhouden; - Woning is voorzien van kunststof kozijnen; - Stenen berging; - 4 zonneschermen aanwezig (2 elektrisch en 2 handmatig); - Energielabel B; - 9 zonnepanelen aanwezig op de woning; - Het centrum en alle voorzieningen op fiets-loopafstand; - Het openbaar vervoer en de uitvalswegen zijn snel te bereiken; - Van de woning is een meetrapport aanwezig, gebaseerd op de NEN 2580 meetinstructie. De vermelde oppervlakten en inhoud zijn gebaseerd op dit meetrapport.

Vezi descrierea în poloneză

Informații generale
Preț 450.000 €
Stare vândut
acceptare In overleg
Proprietate
Natură Eengezinswoning, tussenwoning
Construcție Bestaande bouw
Anul construcției 1975
Acoperiș Zadeldak bedekt met pannen
Suprafețe și conținutul
Suprafață 139 m2
suprafaţa exterioară a clădirii 3 m2
în afara camerei 9 m2
Suprafața terenului 156 m2
întreaga suprafață 493 m2
Diviziune
Numărul de camere 5 kamers (4 slaapkamers)
Numărul de băi 1 badkamer en 1 apart toilet
Echipament pentru baie Inloopdouche, toilet, en wastafelmeubel
Numărul de etaje 3 woonlagen
echipament Airconditioning, buitenzonwering, glasvezelkabel, natuurlijke ventilatie, rolluiken, schuifpui, en zonnepanelen
Energia
Tipul B
Izolație Dakisolatie, dubbel glas, HR-glas en muurisolatie
încălzire Cv-ketel
Apă caldă Cv-ketel
cazan Atag (gas gestookt combiketel uit 2014, huur)
Date cadastrale
Suprafață 156
Structura de proprietate Volle eigendom
Spațiu exterior
Locație In woonwijk
Grădină Achtertuin en voortuin
Plasare suplimentară
Depozitare în aer liber Vrijstaande stenen berging
echipament Elektra
Garaj
Contactati-ne
Esti interesat de imobiliare?
scrie-ne

Calculatorul bonității

Vă rugăm să introduceți câteva detalii pentru a verifica gratuit suma maximă de ipotecă pe care o puteți obține.

CALCULA CREDIT IPOTECAR