
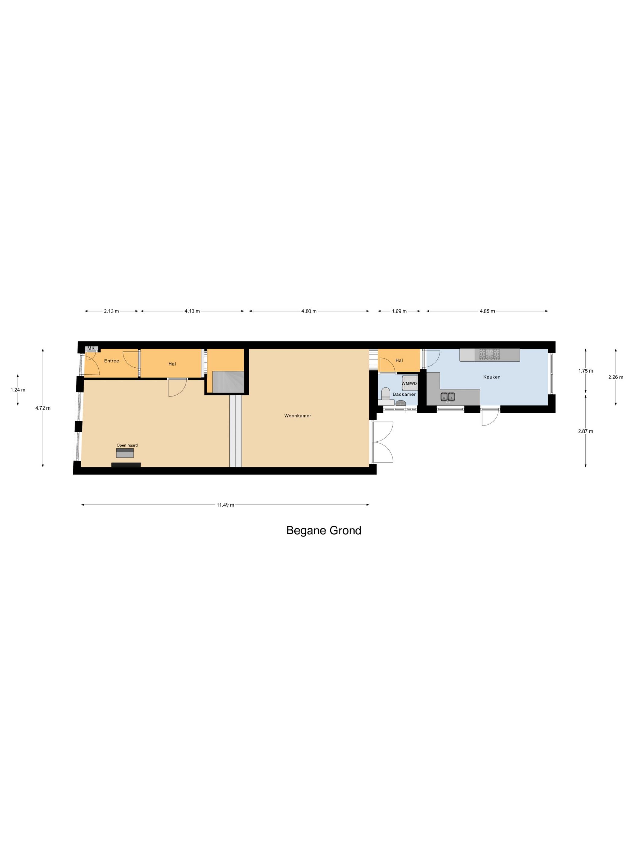
Stijlvol wonen aan de Alkmaarse gracht! Dit grachtenpand aan de Oudegracht 269 ademt historie en karakter, gelegen aan een van de mooie grachten die de historische binnenstad van Alkmaar sieren. Deze woning in n oogopslag: - Rijks monumentaal; - Tuinligging op het zuidwesten; - 2 slaapkamers op de 1e verdieping; - Ruime woonkamer met openslaande deuren naar de tuin; - Uitbouw met keuken, toiletruimte en vliering. Benieuwd naar deze woning? Plan dan een vrijblijvende bezichtiging met n van onze makelaars. Indeling: Begane grond: Zodra u binnenstapt, wordt u verwelkomd door de prachtige authentieke tegelvloer. De lichte woonkamer is royaal opgezet, voorzien van een schouw en openslaande deuren naar de zonnige achtertuin een heerlijke plek om binnen en buiten met elkaar te verbinden. De keuken is gesitueerd in de uitbouw en is voorzien van diverse inbouwapparatuur. In deze uitbouw is tevens de toiletruimte gesitueerd en is de bergzolder met een vlizotrap bereikbaar. 1e verdieping: Op de eerste verdieping bevinden zich twee royale slaapkamers, een leuk detail in de voorste slaapkamer is de open nok aan de voorzijde wat het gevoel van ruimte versterkt. De badkamer is uitgerust met zowel een ligbad als een douche, wat zorgt voor optimaal comfort. Een vlizo trap vanuit de hal leidt naar de zolder, die volop mogelijkheden biedt voor opslag en tevens de CV-installatie huisvest. De ligging van dit bijzondere pand is minstens zo aantrekkelijk: wonen in het hart van Alkmaar, met alle voorzieningen, winkels, horeca en cultuur binnen handbereik, terwijl u tegelijkertijd kunt genieten van de rust van een eigen tuin. Bijzonderheden: - De woning betreft een Rijksmonument; - In overleg is het mogelijk om ook het object aan de Gedempte Baansloot 28 te Alkmaar te kopen.
| Informații generale | |
| Preț | 695.000 € |
| Stare | vândut |
| acceptare | In overleg |
| Proprietate | |
| Natură | Grachtenpand, vrijstaande woning |
| Construcție | Bestaande bouw |
| Anul construcției | 1649 |
| Acoperiș | Schilddak bedekt met pannen |
| Clădire specifică | Monumentaal pand |
| Suprafețe și conținutul | |
| Suprafață | 119 m2 |
| Alte locuri din interior | 4 m2 |
| Suprafața terenului | 172 m2 |
| întreaga suprafață | 456 m2 |
| Diviziune | |
| Numărul de camere | 4 kamers (2 slaapkamers) |
| Numărul de băi | 1 badkamer en 1 apart toilet |
| Echipament pentru baie | Douche, ligbad, toilet, en wastafel |
| Numărul de etaje | 2 woonlagen |
| echipament | Mechanische ventilatie, natuurlijke ventilatie, rookkanaal, en TV kabel |
| Energia | |
| Tipul | Niet |
| Izolație | Dubbel glas |
| încălzire | Cv-ketel |
| Apă caldă | Cv-ketel |
| cazan | Remeha (gas gestookt combiketel uit 2010, eigendom) |
| Date cadastrale | |
| Suprafață | 172 |
| Structura de proprietate | Volle eigendom |
| Spațiu exterior | |
| Locație | Aan rustige weg, aan vaarwater, aan water, in centrum en vrij uitzicht |
| Grădină | Achtertuin |
| în afara curții | 74 m2 (13,50 meter diep en 5,50 meter breed) |
| Expozitie de gradina | 74 m2 (13,50 meter diep en 5,50 meter breed) |
| Plasare suplimentară |
| Garaj |
Vă rugăm să introduceți câteva detalii pentru a verifica gratuit suma maximă de ipotecă pe care o puteți obține.