
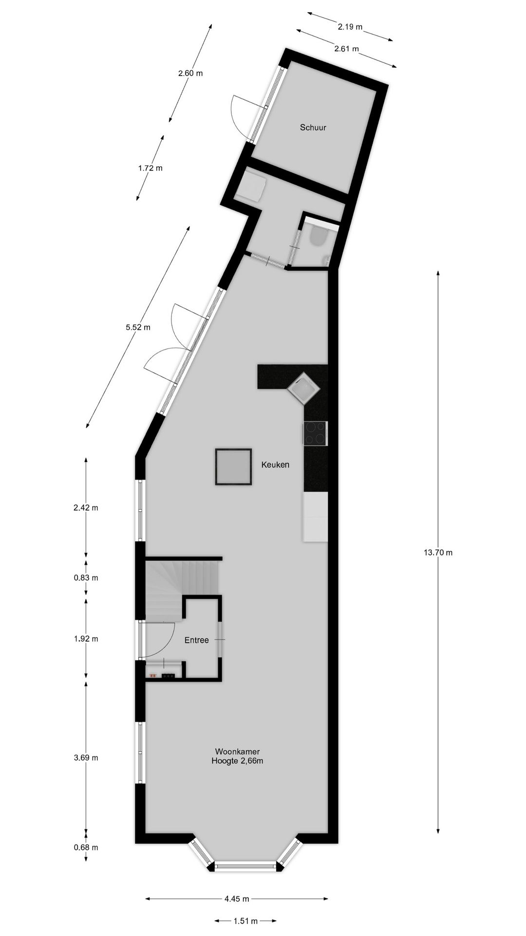
ALGEMENE OMSCHRIJVING Aan de EmmawegOranjeweg, met vrij uitzicht aan de voorzijde, ligt deze charmante, energiezuinige hoekwoning (energielabel A) met maar liefst 3 parkeerplekken op eigen terrein. De woning is in 2019 volledig gerenoveerd en voorzien van alle moderne gemakken. Dankzij de slimme indeling en lichtinval voelt de woning aanzienlijk ruimer aan dan het aantal vierkante meters doet vermoeden. BEGANE GROND Entree met hal, moderne meterkast (voorzien van voldoende groepen en 3-fase aansluiting) en een verdiepte trapkast. Vanuit de hal toegang tot de lichte 14 meter lange woonkamer met vloerverwarming en sfeervolle erker aan de voorzijde van de woning. Aan de tuinzijde bevindt zich de open woon-eetkeuken in L-opstelling. Deze bijzondere keuken, uitgevoerd met afgeronde hoeken, is voorzien van hoogwaardige inbouwapparatuur, waaronder een inductiekookplaat met gentegreerde afzuiging (Gaggenau), vaatwasser (Gaggenau), combi-oven (Bosch), koel-vriescombinatie (Liebherr) en een Quooker. Aan de achterzijde ligt een sfeervolle tuinkamer met openslaande deuren naar de tuin (hele dag zon in de tuin) met meerdere terrassen. Aansluitend is er een tussenhal met opstelplaats voor wasmachine en droger, evenals een modern vrijhangend toilet met fontein. EERSTE VERDIEPING Overloop met een ruime slaapkamer aan de tuinzijde, voorzien van toegang tot de ensuite badkamer, afsluitbaar middels een schuifdeur. De badkamer beschikt over een inloopdouche, toilet en wastafel, en is tevens vanaf de overloop bereikbaar. De tweede slaapkamer bevindt zich aan de voorzijde van de woning en is ingericht als kastenkamer. TWEEDE VERDIEPING Via een vaste trap bereikt u de zolderkamer met dakkapel. Deze verdieping is momenteel ingericht als werk-studeerkamer. BIJZONDERE KENMERKEN > Woonoppervlak 91m2 BBMI-gemeten > Energielabel A, volledig gesoleerd met dubbel glas HR++ > Nieuwe gesoleerde begane grondvloer (schuimbeton) voorzien van vloerverwarming > 8 zonnepanelen > Meerdere (3) parkeerplaatsen op eigen terrein > Grotendeels voorzien van nieuwe kozijnen Aanvaarding in overleg
| Informații generale | |
| Preț | 595.000 € |
| Stare | vândut |
| acceptare | In overleg |
| Proprietate | |
| Natură | Eengezinswoning, hoekwoning |
| Construcție | Bestaande bouw |
| Anul construcției | 1935 |
| Acoperiș | Zadeldak bedekt met pannen |
| Clădire specifică | Gedeeltelijk gestoffeerd |
| Suprafețe și conținutul | |
| Suprafață | 91 m2 |
| Alte locuri din interior | 7 m2 |
| în afara camerei | 6 m2 |
| Suprafața terenului | 213 m2 |
| întreaga suprafață | 365 m2 |
| Diviziune | |
| Numărul de camere | 4 kamers (3 slaapkamers) |
| Numărul de băi | 1 badkamer en 1 apart toilet |
| Echipament pentru baie | Inloopdouche, toilet, en wastafel |
| Numărul de etaje | 2 woonlagen en een zolder |
| echipament | Mechanische ventilatie en zonnepanelen |
| Energia | |
| Tipul | A |
| Izolație | Dubbel glas en volledig gesoleerd |
| încălzire | Cv-ketel en gedeeltelijke vloerverwarming |
| Apă caldă | Cv-ketel |
| cazan | Nefit (gas gestookt uit 2019, eigendom) |
| Date cadastrale | |
| Suprafață | 213 |
| Structura de proprietate | Volle eigendom |
| Spațiu exterior | |
| Locație | Aan rustige weg, in bosrijke omgeving, in woonwijk en vrij uitzicht |
| Grădină | Voortuin en zijtuin |
| Expozitie de gradina |
| Plasare suplimentară | |
| Depozitare în aer liber | Aangebouwde stenen berging |
| echipament | Elektra |
| Garaj |
Vă rugăm să introduceți câteva detalii pentru a verifica gratuit suma maximă de ipotecă pe care o puteți obține.